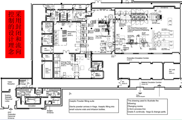
在谈先进药品生产设施之前呢,谈一下什么是药品生产设施?我们认为药品生产设施应当包括以下三方面:生产系统(设备、运营管理)、辅助系统(辅机、公用工程)以及建筑(主要是提供一个相对隔离的环境)。
u 产品工艺:物料、处方、工艺方法、工艺设备、生产运营管理
u 药品制造系统:生产设施、工艺设备、供应商、质量检测
u 建筑空间:设备设施、生产操作、维修管理、人物流控制
u 生产辅助系统:生产支持系统、公用工程系统、自动化与信息化管理
一、药品生产设施的特点

二、国外先进制药设施关注什么?





三、制药工程先进制造设施发展趋势

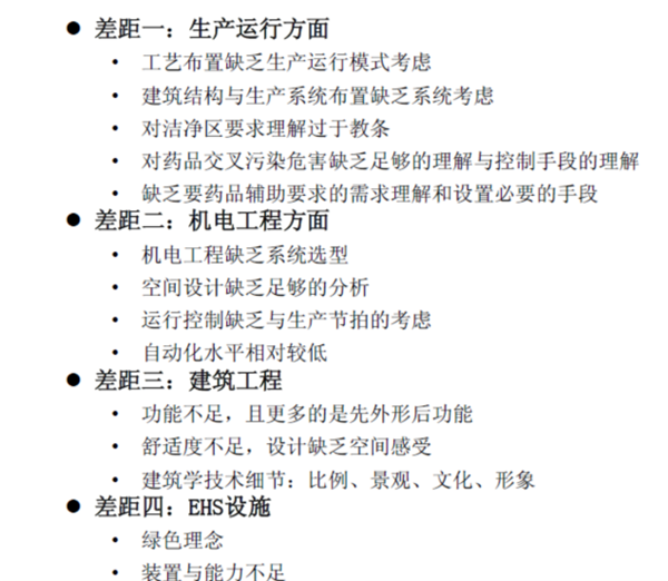
四、中国制药设施与国际先进水平的差距
